





















Adresse
5 avenue du Pasteur Martin Luther King
Trappes (78)
Situer le bien
Livraison prévue
Date non définie
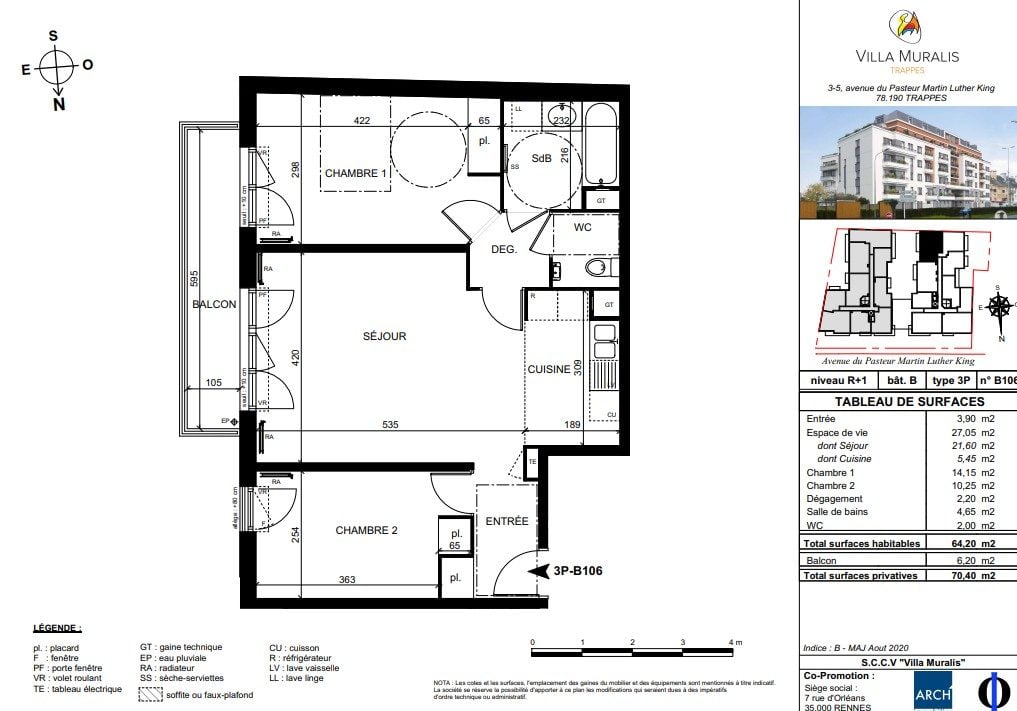
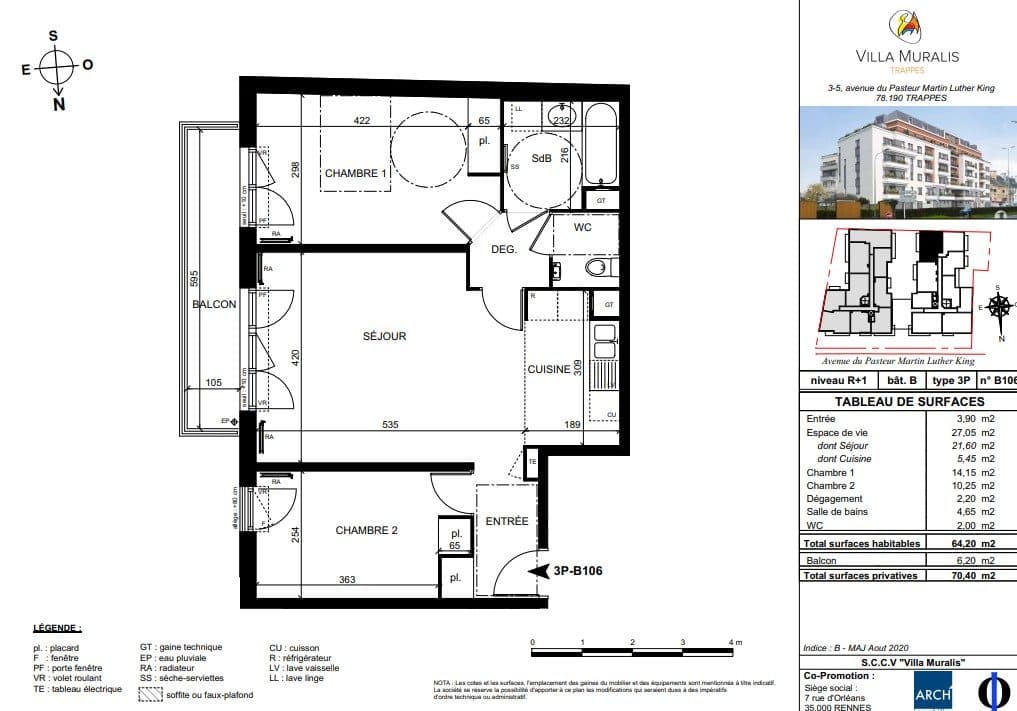
Appartement T3 neuf de 63 m² au sein du programme immobilier Villa Muralis à Trappes. Situé au 2e étage, ce bien offre un emplacement idéal pour un investissement ou une première acquisition. Ses volumes généreux et son exposition optimale en font un choix judicieux pour profiter d'un cadre de vie agréable. Avec ses 3 pièces, cet appartement neuf saura séduire les acheteurs à la recherche d'un bien fonctionnel et lumineux.
Appartement 3 pièces
63 m²
2
2
Prix du bien
Prix TTC · TVA 20 %
soit 3 667 €/m²
5 775 €
* Estimation basée sur 2,5%
Coût total d'acquisition
236 775 €
Prix + frais de notaire
Pour ce bien à 231 000 €
Évolution du capital et des intérêts sur 25 ans
Nos conseillers partenaires vous accompagnent dans votre projet de financement.
Description
APPARTEMENTS TYPE 3 - RESIDENCE NEUVE - VILLA MURALIS - Avenue Martin Luther King à TRAPPESRESIDENCE PRINCIPALE / PTZ / FRAIS DE NOTAIRES REDUITS / LMNP-LMP / ELIGIBLE TVA 5.5% (primo-accédants selon ressources)Au coeur d'une ville résolument tournée vers l'avenir avec son renouvellement urbain, la résidence Villa Muralis fait montre d'avangardisme grâce à son style élégant et contemporain. Chaque logement offre de beaux espaces lumineux et conviviaux. Tous les appartements s'ouvrent sur un balcon ou une terrasse.La résidence dont la livraison est récente, dispose d'un ascenseur. Ce dernier déssert tous les niveaux sous-sol compris. Les commerces et l'arrêt de bus se trouve à 2 pas. La gare à proximité permet également un accès rapide à Par...
Voyons-voir ce qu'il y a autour du logement et les chiffres clés

Promoteur lyonnais indépendant, Arch'immobilier cultive une vision de l'habitat centrée sur l'élégance et la durabilité. Intervenant sur des emplacements de choix dans la métropole, l'entreprise propose des résidences intimistes où l'architecture contemporaine rencontre des prestations intérieures de haut standing.
Pas entièrement convaincu ? Jetez un œil à ceux-là
200 000 €
Appartement • 3 pièces
Surface : 60.1 m²
177 000 €
Appartement • 2 pièces
Surface : 41.58 m²
165 000 €
Studio
Surface : 31.07 m²

245 000 €
Appartement • 2 pièces
Surface : 38 m²

249 000 €
Appartement • 2 pièces
Surface : 38 m²

319 000 €
Appartement • 3 pièces
Surface : 62 m²

195 000 €
Appartement • 2 pièces
Surface : 41 m²

269 000 €
Appartement • 3 pièces
Surface : 71 m²